卧室隔出阳台效果图,山东女子将阳台改成临窗卧室太让人羡慕啦
如今房价高昂众所周知,抚养子女又需要巨大花费,因此许多家庭购房时只能选择面积较小的户型。

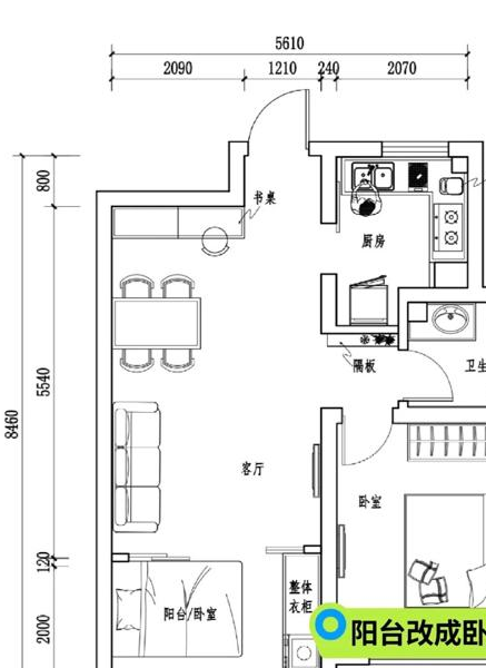
最近看到山东一位女性的装修实例卧室隔出阳台,将阳台改造成靠窗的睡眠空间,立刻解决了孩子没有单独房间的难题,这种方式显得非常贴近生活,让人很想和朋友们分享交流。

她家原本只有50多平米的一室一厅,阳台拓宽了半米,又从客厅挪用了一小块地方,这样就能形成一个可以放置双人床的儿童房间。

最令人称道的是隔断方案——采用玻璃滑动门搭配纱幔,白天将门打开与客厅融为一体,光线得以无阻碍地洒入;到了夜晚,放下纱幔,孩子躺在床上便拥有了专属的私密空间,既能保护隐私,又能获得满满的安全感。

好多人担心改了阳台没地儿晾衣服,这事儿人家早想好了。
天花板装置了可调节晾衣架,绕开床铺区域,晾晒被罩和床单不受影响;窗户旁边另外配置了根长杆,可以挂好多小件衣物,让阳光直接照射,加速晾干过程。
白天晾完晚上收,完全不影响娃睡觉,这小心思太实用了。
整理衣物也很用心,床边正对着的是一整面墙的储物柜,并且它和洗衣区紧密相连,洗净的衣物可以立刻放进柜中,无需再移动位置。
床边安装了围边装饰,搭配可灵活移动的地铺,既节省空间又便于调整,孩子长大之后更换家居用品也更便利。
最让我感到意外的是床边设有两个电源接口,可以放置一个小型照明灯具,或者给手机充电,和普通卧室的功能完全相同。
她家里在走廊摆放了一些植物,选的都是容易存活且不易生虫的种类,比如绿萝和虎皮兰,这样既增添了活力,又不会带来麻烦。
孩子有时能推开隔断门,从床上瞥一眼客厅的电视,——尽管通常不允许长时间观看,但这样的"特殊待遇"能让孩子高兴很久,这或许就是平淡时光中的微小快乐吧。
其实咱普通人装修,不图多豪华,就图住着舒服、实用。
将阳台转变为儿童房间这种方法,非常适合开销不大的小型家庭,既能为孩子提供专属的独立区域,同时也没有影响到日常生活的便利条件。
领会之后便知,居所的体量根本无关紧要,只要精心整治、妥善布局,狭小的住处同样能够化作理想的栖身之所。







